property information
物件情報
収益物件名古屋市南区宝生町四丁目(サンライズ宝生) 一棟収益
\ 価格変更のお知らせ /
2026年4月6日
9,880万円 → 8,880万円
(1000万円ダウン)
この機会にぜひご検討下さい♩
・
・
\\ 全17室中16室賃貸中 //

…………〈 現 行 賃 料 〉…………
![]()
611,100 円
![]()
7,333,200 円

約 8.25 %
………〈 満 室 時 賃 料 〉………
![]()
635,100 円
![]()
7,621,200 円

約 8.58 %
※共益費・駐車場代含む

▼室内参考[101]


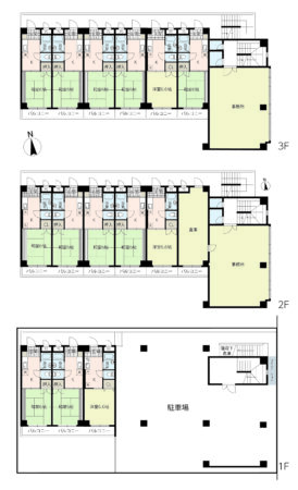
FLOOR PLAN
1K×15室+事務室×2室
延床面積147.33坪


BLOCK PLAN

東側幅員6.4m・間口14.7m
前面道路も広くゆとりがあり、
視認性良好です◎

…コンビニやスーパーが徒歩10分圏内
周辺施設が充実した利便性の良い住環境…
▼
▽

✎~詳細資料はお気軽にお問い合わせ下さい
| 現行賃料(年間) | 7,333,200円 | 現行利回り | 約8.25% |
|---|---|---|---|
| 賃貸状況 | 全17室中16室賃貸中 | ||
| 備考 | ・敷金返還金有り:771,400円(関西持ち回り方式) | ||
| 所在地 | 名古屋市南区宝生町四丁目25番地1 | 価格 | 8,880万円 |
|---|---|---|---|
| 交通 | 名鉄常滑線・名鉄築港線「大江」駅まで徒歩14分 | ||
| 管理費など | - | 修繕積立金 | - |
| その他費用 | - | ||
| 専有面積 | 487.06m2(約147.34坪) | 間取り | |
| 建築年月 | 1987年2月(昭和62年2月) | 階数/階建 | 地上3階 |
| 向き | - | バルコニー面積 | - |
| 現況 | 賃貸中 | 駐車場 | 乗用車3台分有り |
| 建物構造 | RC(鉄筋コンクリート) | 総戸数 | 17戸 |
| 管理会社 | 自主管理 | 管理方式 | - |
| 土地権利 | 所有権 | ||
| 分譲会社 | ― | ||
| 施工会社 | ― | ||
| 備考 | 【間取り】1K×15室+事務室×2室 ・司法書士指定 ・令和7年度固都税年税額:377,951円 ・検査済証無 ・青焼き図面有り ・エレベーター、オートロック無し ・形状等が現況と異なる場合は現況優先となります | ||
| 引渡時期 | 即可(残代金清算後) | 取引態様 | 一般媒介 |
| 更新日 | 2026年4月11日 | 次回更新予定日 | 2026年4月25日 |
Googleマップで、物件の周辺地図の確認と、ストリートビューをご利用いただけます。



















